Strawberry Shores  -  A Residential Community
About Strawberry Shores Leasing at Strawberry Shores Strawberry Shores Maintenance Contact Strawberry Shores

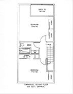
Floor Plans

    
   Small 1 Bedroom          Large 1 Bedroom                2 Bedroom            Town House 1st floor   Town House 2nd floor

 









 


Home | Leasing InfoFloor Plans | Contact Us

Management of this web site by Internet Marketplace
Created by Ad-Image